廣東星藝裝飾集團廣州有限公司,一起尋找好裝修!
您的當前位置:首頁>裝修案例>寶興翠園
分享到 微信
設計經驗:11年
上傳作品:941套
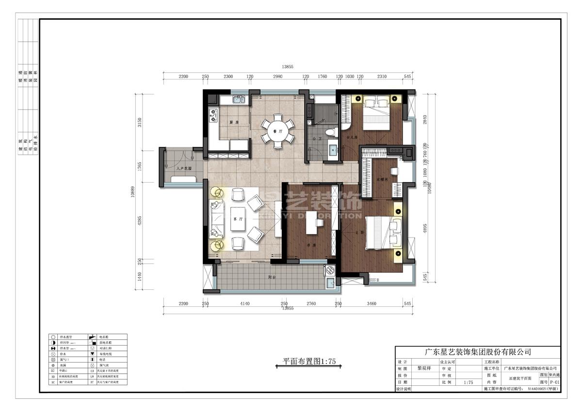
樓盤:寶興翠園
戶型:
面積:135 m2
設計風格:新中式風格
工程造價:13萬
本案主要是2口人住,業主女兒不經常回來,所以主衛是不保留,做成衣帽間
售前咨詢
裝修熱線
預約量房
回到頂部
24小時全國服務熱線
(c)Copyright 2021 廣東星藝裝飾集團有限公司廣州分公司 版權所有 粵ICP備12080332號 公安部備案號 44010602004978號