方案展示
設計說明
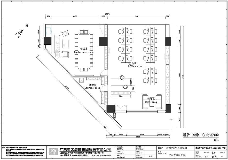
MAVEGA GROUP 是一家船舶經紀為主營業務的英國企業,中國區負責人Tiger希望給與辦公空間一個符合行業屬性的定位,時差原因辦公時間會直至深夜,整個辦公空間對于員工以及客戶的一個娛樂性、舒適性及其重要,辦公空間按照”家”的屬性要求,給予了更多的可能性,整個項目只分為兩個大空間,大開放沒有等級區分的辦公區域、水吧、極具關懷的零食柜都能完美詮釋Tiger對于辦公生活的特殊要求,另一個空間具有會議和接待功能,昨天仍在海上乘風破浪的船長也許今天和Tiger一起慵懶在MAVEGA的沙發一起品味勃艮第的紅酒。Tiger的空間期待得到完整的呈現,設計本是設計師與甲方共同的作品,使得不同行業、不同認知的個體趨于融合統一。
[展開]
關注我們
分享到
微信

立即預約
在線咨詢
在線客服
公安部備案號 44010602004978號